Una bella casa de 220 m2 construída en un terreno de 450 m2, con 3 dormitorios. La obra se llama Casa RC y esta ubicada en Castelar, provincia de Buenos Aires, Argentina. El diseño y construcción estuvo a cargo por el Estudio Geya en el 2008 en un lote de esquina de 15 x 30 metros.
El objetivo fue crear una vivienda con identidad propia, que responda al modo de vida de los clientes, con amplios ambientes, de adecuadas proporciones e integrada al exterior creando diversas sensaciones mediante el uso de la luz, el agua, los reflejos y los contrastes para crear así un confortable espacio para la vida cotidiana. La volumetría de la vivienda surge de la necesidad de dar respuesta a las diferentes fachadas que genera el lote.
Son dos volúmenes que se traban y producen distintos tipos de espacios que se interrelacionan. Prácticamente ciego desde el exterior.
Plano de Planta baja
La planta baja es un único gran ambiente que unifica estar, comedor y cocina: el lugar social. Hacia el fondo del terreno es totalmente transparente, aprovechando la mejor orientación y provocando un contacto directo con el césped y el agua de la piscina. El espacio semicubierto exterior, funciona como otro estar y lo relaciona visualmente con el interior, provocando la indefinición de los límites.
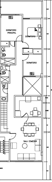
La escalera se ubica junto a un gran ventanal que da a un pequeño jardín, originado por el ahuecamiento del volumen de la planta alta. Plano de Planta alta
La planta alta, sector de la vida privada, es un volumen revestido en Travertino, "cortado" por el ahuecamiento, el cual genera dos claras fracciones, una la habitación principal y la otra, el área de los futuros hijos.
El juego entre geometrías, transparencias y reflejos realza la arquitectura de la vivienda.
Plano de Corte longitudinal
Plano de Corte transversal
Plano de Corte vista
Plano de Vista sudoeste
Plano de Vista sudeste
Plano de Vista noroeste
Plano de Corte vista noroeste
Fuentes: estudiogeya.com.ar, arquimaster.com.ar













































